Opera House Cardiff
Location
Cardiff
Consistenza
Intended use
Competition for the construction of a new opera house in Cardiff
The competition announcement envisaged the construction of a new headquarters for the Welsh national Opera and the new 2000 seat opera house to be built in an old port area to be redeveloped.
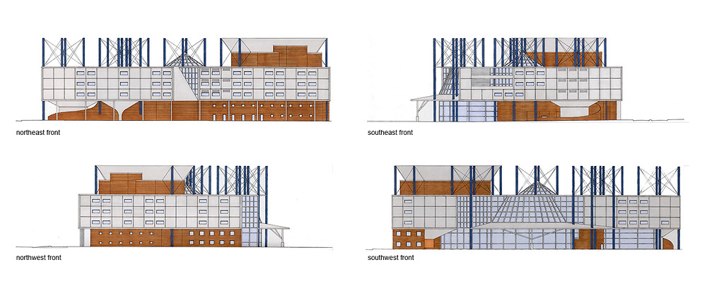
The project consists in a huge metal “container” of about 135m wide and 75m long hanged from 7quadrupeds that recall the shapes and the suggestions of the cranes that unload the cargo holds. The ground floor shape expands itself, clotting according to the theater, shopping centre, offices organisms but,above all, in relation to the large open space of the old dry dock.
The container is completely covered with gray metal cladding. The rest of the building is coated in bricks, except for the lobby areas, foyers and shopping centre that are glazed.
